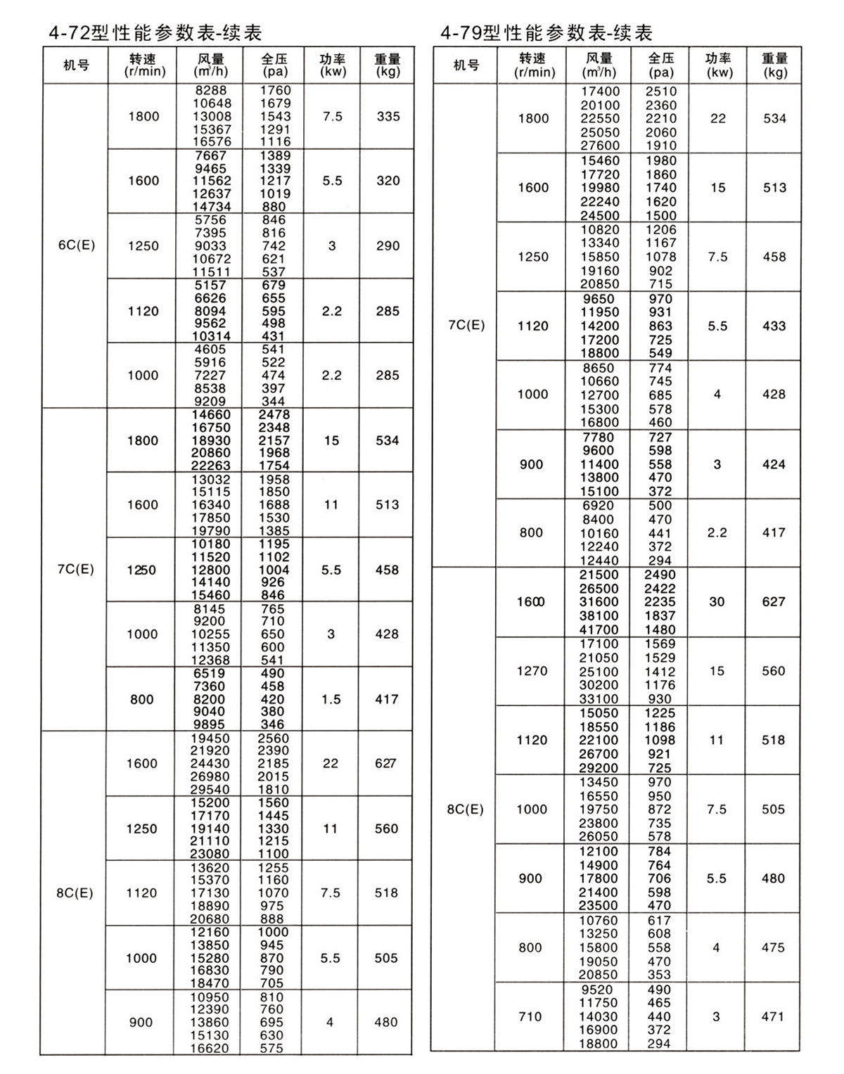
4-72型離心通風機可作為一般工廠及大型建筑物的室內通風換氣用。輸送空氣和其他不自燃的、對人體無害的、對鋼材無腐蝕性的氣體。氣體內不含粘性物質,所含塵土及硬質顆粒物不大于150mg/m?,氣體溫度不得超過80℃。
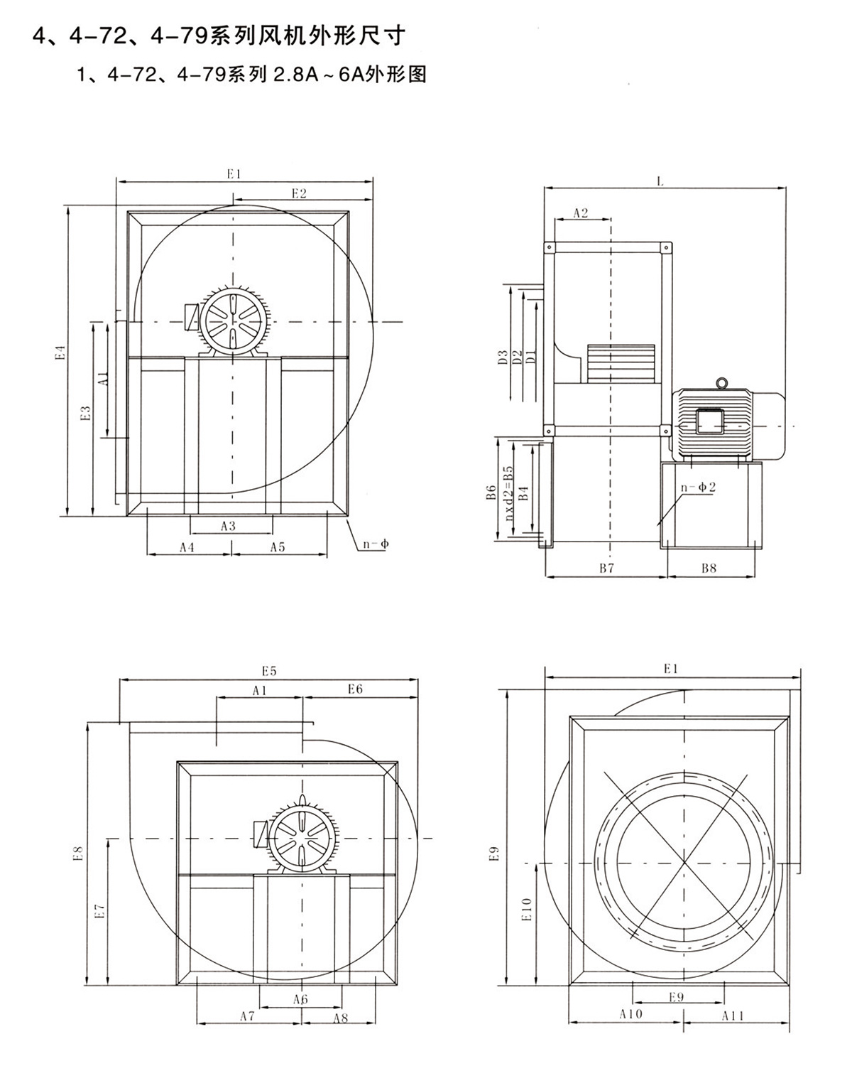
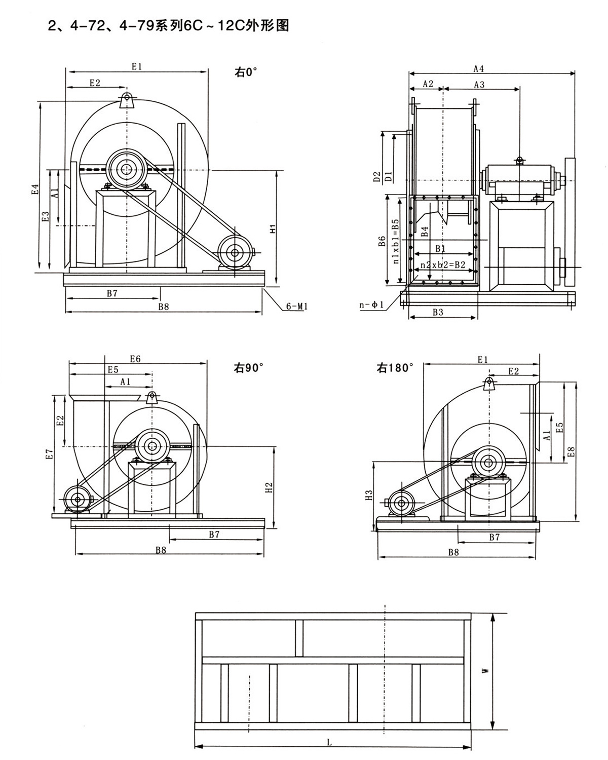
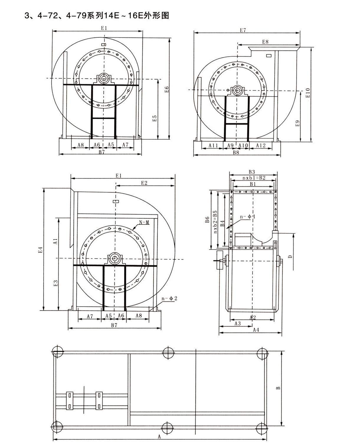
2、風機型式及傳動方式
風機分左旋和右旋兩種型式,從電機(皮帶輪)側正視,葉輪按順時針方向旋轉為右旋,逆時針旋轉為左旋。A式為電機直聯(lián)傳動,B、C、E式為皮帶傳動,D式為聯(lián)軸器傳動。











1、特性及應用
1、用途:4-72型離心通風機可作為一般工廠及大型建筑物的室內通風換氣用。輸送空氣和其他不自燃的、對人體無害的、對鋼材無腐蝕性的氣體。氣體內不含粘性物質,所含塵土及硬質顆粒物不大于150mg/m3,氣體溫度不得超過80℃。
F4-72為防腐型離心風機,用于輸送有腐蝕性的氣體,可用玻璃鋼或鋼板滾塑、不銹鋼等材料制作。
B4-72為防爆型離心風機,用于輸送易燃易爆的氣體,配用防爆型電機、鑄鋁葉輪或非金屬材料制成。
FB4-72為防腐防爆型離心風機,用于輸送有腐蝕性且易燃易爆的氣體。
2、型式:4-72型離心通風機可制成右旋和左旋兩種型式,風機的傳動方式為A、B、C、D四種,6#以下采用A式,7~12#采用C、D式,16#以上采用B式。
3、結構:機號6#以下的4-72型風機主要有葉輪、機殼、進風口等部分配直聯(lián)電動機組成,7#以上除具有上述部分外還有傳動部分。
(1)葉輪:采用后傾翼型葉片、曲線型前盤和平板后盤組成,采用碳鋼制造,并經過靜、動平衡校正,空氣性能優(yōu)良,效率高,運轉平穩(wěn)可靠。
(2)機殼:采用碳鋼焊接制作,12#以下制成整體式,16以上制成兩開式,用螺栓連接。
(3)進風口:進風口制成收斂式流線型整體結構,裝于風機的側面,與軸向平行的截面為曲線形狀,能使氣體順利進入葉輪,且損失較小。
(4)傳動組:傳動部分由主軸、軸承箱、滾動軸承、帶輪或聯(lián)軸器組成。